Description
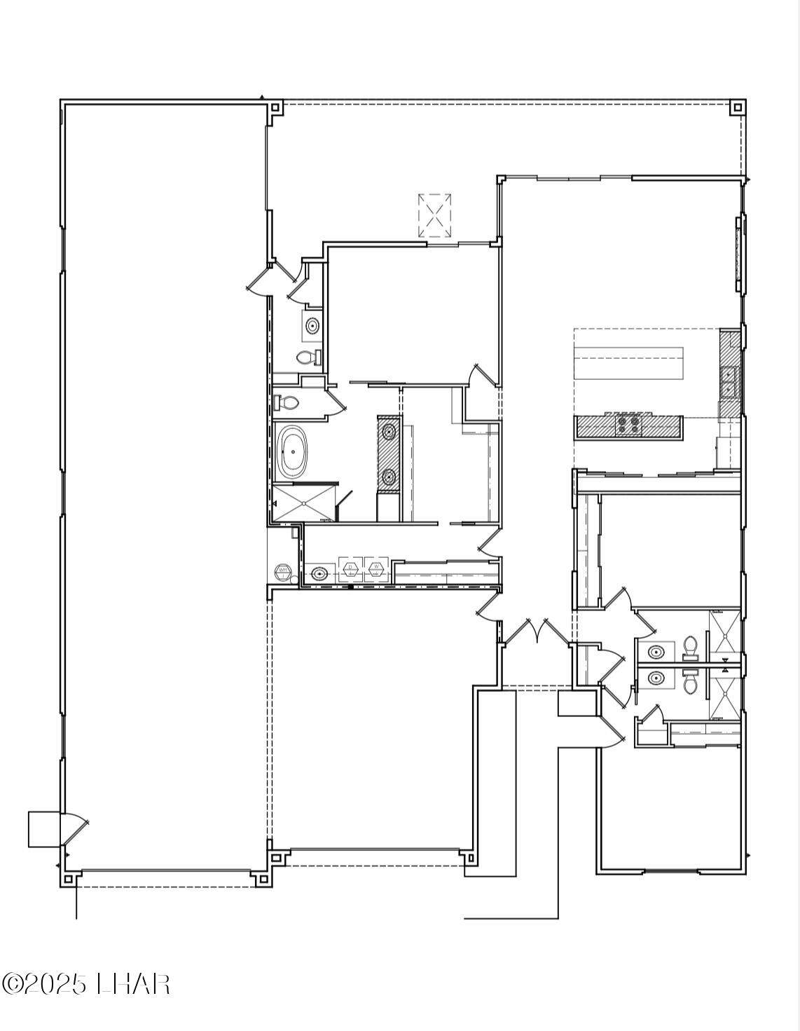
Starting at $500,000 to build this Capital Homes floorplan on your prepared lot. Price does not include land, grading, landscape, walls, or sewer/septic. The EXODUS model Designed for modern living and built with equity in mind. The Exodus is a beautifully designed 3 bed, 4 bath floor plan that brings together modern style and livable comfort. With 2,060 sq ft of living space, this home features a split floor plan, with Luxury finishes throughout. This home includes 2,033 sq ft of garage air conditioned, 73-ft deep RV garage with a 16x14 ft tall garage door + 2 car garage. A beautiful open kitchen layout with a walk around pantry and a large kitchen island. A Fireplace area for cozy nights, and a laundry room that meets your Primary closet for convenient living. 8' tall doors throughout with 10'walls and vaulted ceilings in living room. This floor plan gives you the best of both worlds - style and functionality, with 3 bedrooms, 3 full bathrooms and a half bath in the garage that can be used as a pool bathroom. The rear garage door opens up to your patio or pool location, perfect for entertaining.
-
3BEDS
-
N/AACRES
-
3BATHS
-
11/2 BATHS
-
2,060SQFT
-
$272$/SQFT
School Ratings & Info
Description
Starting at $500,000 to build this Capital Homes floorplan on your prepared lot. Price does not include land, grading, landscape, walls, or sewer/septic. The EXODUS model Designed for modern living and built with equity in mind. The Exodus is a beautifully designed 3 bed, 4 bath floor plan that brings together modern style and livable comfort. With 2,060 sq ft of living space, this home features a split floor plan, with Luxury finishes throughout. This home includes 2,033 sq ft of garage air conditioned, 73-ft deep RV garage with a 16x14 ft tall garage door + 2 car garage. A beautiful open kitchen layout with a walk around pantry and a large kitchen island. A Fireplace area for cozy nights, and a laundry room that meets your Primary closet for convenient living. 8' tall doors throughout with 10'walls and vaulted ceilings in living room. This floor plan gives you the best of both worlds - style and functionality, with 3 bedrooms, 3 full bathrooms and a half bath in the garage that can be used as a pool bathroom. The rear garage door opens up to your patio or pool location, perfect for entertaining.
Related Properties
© 2026 Lake Havasu Association of Realtors. All rights reserved. IDX information is provided exclusively for consumers' personal, non-commercial use and may not be used for any purpose other than to identify prospective properties consumers may be interested in purchasing. Information is deemed reliable but is not guaranteed accurate by the MLS or Realty One Group, Mountain Desert. Data last updated: 2026-01-16T22:39:27.373.
